[课程作业展]2022级园林专业 ——《园林施工图设计》 (指导老师:林竹隐)
日期:2025-01-21 作者: 来源: 浏览量:0
《园林施工图设计》是园林专业园林工程方向专业拓展类课程。课程教授学生明确园林工程中建筑及其他单项园林工程施工图绘制方式,了解园林专业制图规范,熟悉园林工程中各分项工程施工步骤及工艺细节,掌握园林工程施工图纸专业性、规范性绘制的方法;能够运用课程所学,完成制图设计、园林工程、园林工程预算、造价等多项岗位上所需的施工图绘制工作。
课程开展项目式教学,课终作业通过选取包含各单项工程的项目完成施工图图绘制,实现对整体教学内容的巩固和教学目标的达成。
本课程教学内容分为园林建筑施工图绘制、园林构筑物施工图绘制、园林单项工程施工图绘制、园林景观工程项目施工图绘制四部分,在课程作业中对应完成施工总图、建筑(构筑)施工图、园路施工图、水景施工图和绿化种植施工图。
结合秦皇岛阿那亚儿童农庄项目方案文本,同学们完成项目施工图册:
|
施工放线总图 |
|
分区平面图(部分) |
|
园路施工图(部分) |
|
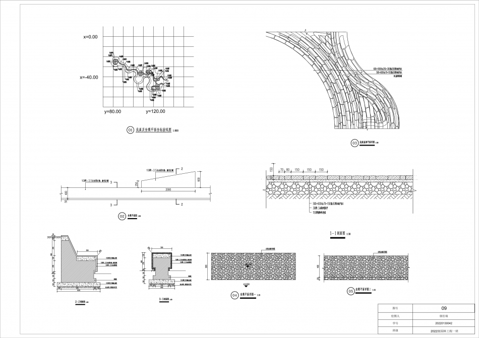
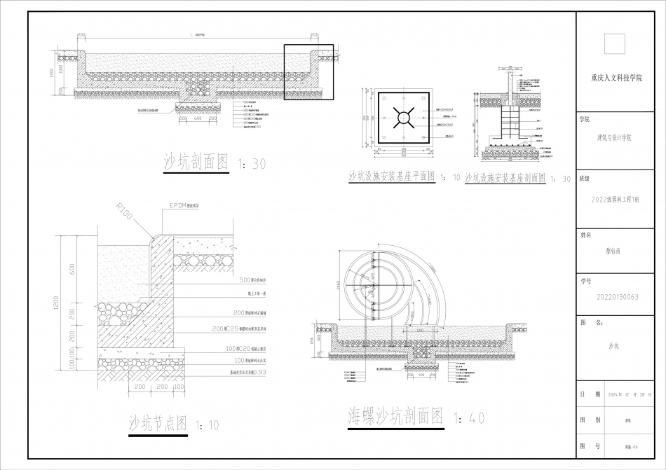
沙坑、水池施工图(部分) |
|
铺装施工图(部分) |
|
场地绿化施工图 |
|
花境设计施工图 |
同学们在本次课程作业中熟练应用园林工程施工图绘图基础知识及技能,结合项目场地实况,对场地地形、建筑物、、园路、水景、园林设施、游戏设施、生态水景和绿化工程进行了完整施工设计表达,完成项目设计。本次课程作业同步实际园林工程项目,同学们在设计过程中能对施工细节问题进行思考并提出解决,达成了课程教学目标。